EP ES08-WAi
Nettó ár
Ár nélkül
Nyomtatás
INFÓ
Termékcsalád
Gyalogkíséretű targonca
Márka / modell
EP ES08-WAi
Gyártási év
2024
Extrák
Új
Ország
Görögország
Mascus ID
86A68015
TERMÉKLEÍRÁS
Üzemmód
Elektromos
Emelőteljesítmény
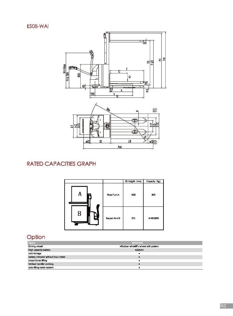
800 kg
Dokumentumok
Egyéb információ
SEMI ELECTRIC PEDESTRIAN STACKER
Product
ES08-WAi can bring pallets to ergonomical working height and carry two pallets at a time. With a powerful AC system, high strenght vertical gearbox and safe hydraulic system design, this truck will help to improve the productivity and make your work very easy and more productive.
EP Unique
Perfect traction on any surface
Features
The ES08-WAi has many great features that will help you improve your daily operations. Find out more.
Long sideways tiller
Optimum overview and safe working
Tiller head
With the new design of ergonomically tiller head, all buttons can be reached conveniently and comfortably.
Mast and chassis
Mast and chassis are assembled together, easy for maintenance.
ALEXANDROS SPATHARAS COMPANY
13, Agiou Kosma Aitolou Str., Evosmos 56224 Thessaloniki Θεσσαλονίκη Görögország
8
éve a Mascus ügyfeleEmail értesítések
